We are not only manufacturer of high quality stage truss, also we have professional R&D team and engineers for create solutions for your needs.
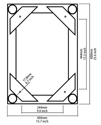
HT6040 series rectangular bolted truss, crafted from premium EN AW-6082 T6 aluminum alloy, is a alternative to square truss, specification of 400mm*600mm, offering optimized performance from strength to weight . Its rectangular profile allow greater flexibility and creativeness for special structure designs, making it ideal for stages, LED screen support, exhibition booths, and architectural installations. Available in lengths customized, it ensures superior loading capacity and stability while maintaining easy transport and quick assembly. Perfect for unique dimensions projects design and quick installation, and provide reliable structural integrity.
| Main tube | 50x3mm(2x0.12 inch) |
| Vice tube | 50x3mm(2x0.12 inch) |
| Braces | 25x3mm(0.98x0.12 inch) |
| Alloy | EN-AW 6082-T6 |
HT6040 STRAIGHT SEGMENT

| Span(m) | 6m | 8m | 10m | 12m | 13m | 14m | 15m | 16m | 17m | 18m | 19m | 20m | |||
| Distrib.Load(kg/m) | 424.9 | 250.5 | 172.5 | 131.1 | 113 | 94.3 | 80.1 | 66.1 | 53.1 | 37.7 | 30 | 21.2 | |||
| Deflection(mm) | 113 | 29 | 45 | 65 | 75 | 85 | 95 | 105 | 115 | 125 | 135 | 145 | |||
| Point Load(kg) | 1529.7 | 1051.9 | 862.6 | 786.7 | 734.6 | 660.2 | 600.7 | 528.4 | 451 | 339.3 | 284.7 | 212.1 | |||
Advantage list for the HT6040 Series Bolted Truss:
1. Extra Heavy-Duty Load Capacity – Built to support extremely large spans and heavy equipment.
2. Premium EN AW-6082 T6 Aluminum – Offers maximum strength, durability, and corrosion resistance.
3. Large 600mm x 400mm Profile – Provides superior structural stability for demanding applications.
4. Bolted Connection System – Ensures high-precision alignment, strong joints, and easy component replacement.
5. Ideal for Large-Scale Projects – Perfect for stadium concerts, festival stages, and outdoor roof systems.
6. Modular Flexibility – Allows custom configurations for complex structures.
7. Transport and Storage Efficiency – Detachable sections reduce handling and logistics costs.
8. Professional Heavy-Duty Design – Robust appearance suitable for high-profile events.
Do you want me to **also create a professional summary paragraph for HT6040 Series** for use in your catalog or website?
We are not only manufacturer of high quality stage truss, also we have professional R&D team and engineers for create solutions for your needs.
Provides standard trusses in various specifications and required length, structure design, touring truss, stage equipments and accessories, etc.
Get in touch with us through our contact form 24/7.0ur Customer
Support and Account Management teams provide the best service in the industry, We're here to provide you with more information, answers to your questions and create solutions for your needs.